303 Bluebonnet, Burnet, 78611, TX

303 Bluebonnet, Burnet

$995,000

  • ID: HLM173348

ABOUT

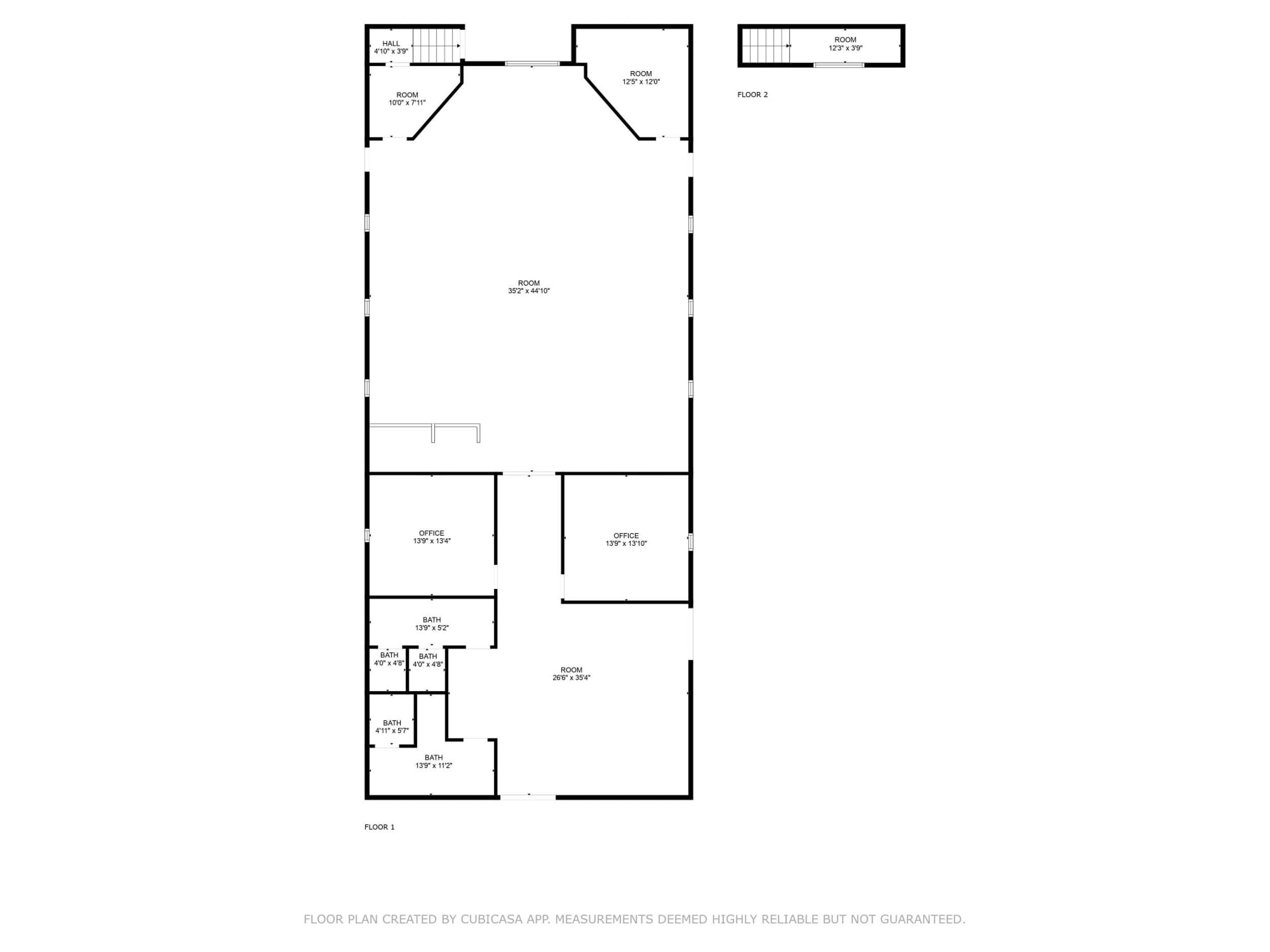
Positioned on a prime 3.88-acre lot along highly visible Highway 281 in Burnet, Texas, this beautifully renovated 2,975 sq ft building offers a unique opportunity for a wide range of commercial uses under Neighborhood Commercial zoning. Currently operating as a church, the structure has been meticulously updated and maintained, presenting a clean, modern space ideal for office or a myriad of other uses. The expansive property provides ample room for future development, additional structures, or customized site planning to suit a variety of business or investment strategies. Whether you're an established company seeking attractive office space with room to grow, an investor looking to capitalize on Burnet’s continued expansion, or a congregation searching for a move-in-ready facility, this property is a standout option. With unbeatable frontage on one of Burnet’s main thoroughfares and proximity to key local amenities, this versatile site is well-positioned for visibility, accessibility, and long-term value. Explore the potential this adaptable and polished property has to offer.

    Location