1209 Bessemer, Llano, 78643, TX

1209 Bessemer, Llano

$5,500

  • ID: HLM173502

ABOUT

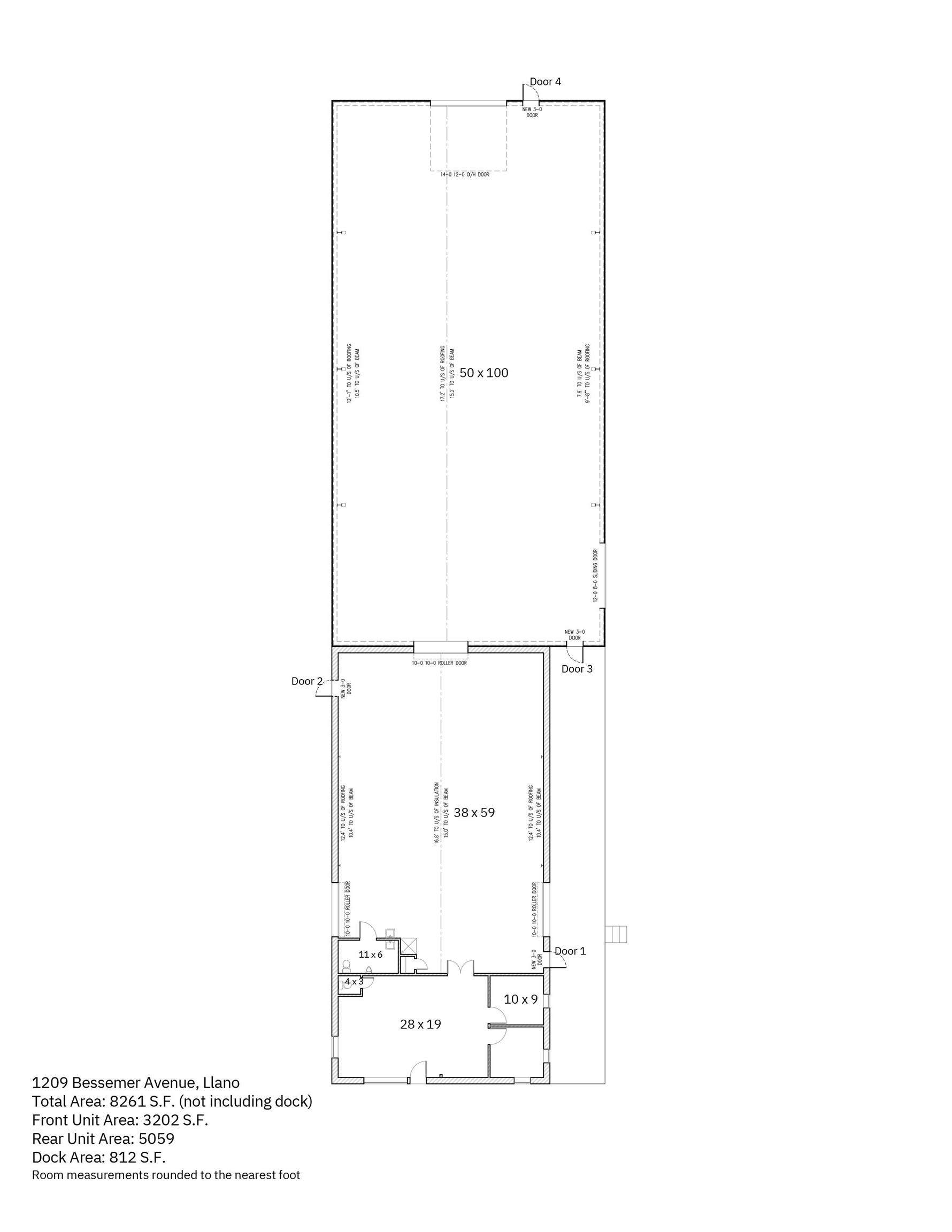
Prime Commercial Property for Lease – High-Visibility Location. Flexible Space. Outstanding Value. This 7,900 sq ft commercial property offers an exceptional opportunity for businesses seeking a well-located, multi-use space in Llano. With prime frontage on Highway 16 and proximity to Highway 29, and Highway 71, your business will benefit from constant exposure to high traffic between Llano and San Saba. The property’s versatile layout – including office, warehouse, and ample yard space – can accommodate a variety of uses from retail and office operations to warehousing and distribution. The property has 3 separate areas, including 770s.f. of Office/Retail, 2200s.f. of Insulated Warehouse with loading dock, and 5000s.f. of Warehouse with loading docks, all available for rent as separate parts if desired.

    Location