17340 FM 1123, Out of Area, 76534, TX

17340 FM 1123, Out of Area

$421,760

  • ID: HLM174865
  • 2 bedroom(s)
  • 2 bathroom(s)

ABOUT

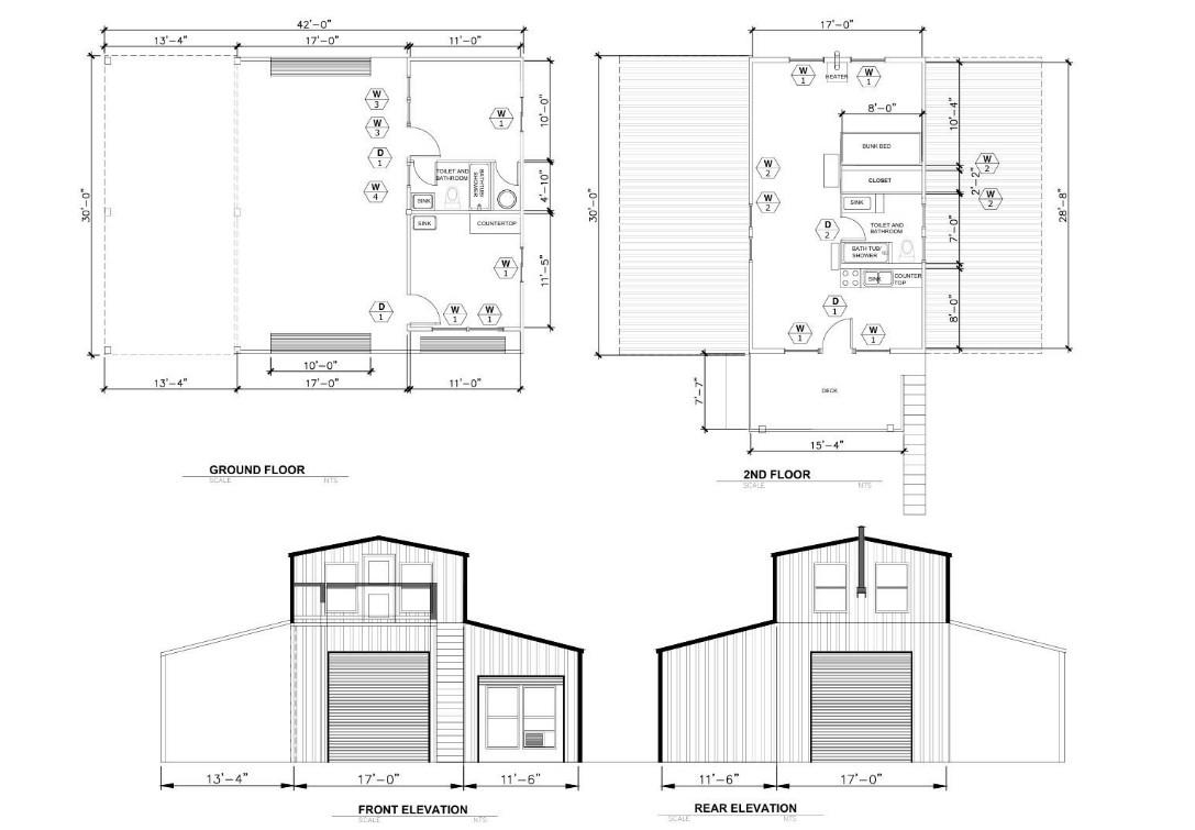
This property spans 13.18 acres, inviting you the charm of Holland, Texas. Beautiful views, 2 story barn 1260 square feet, additional 500 sq ft of living quarters with 2 bed, 2 bath, and kitchen, nestled in Bell County's picturesque countryside. Situated 2 miles from Holland, Salado 11 miles, 17 miles from Temple, 32 miles from Georgetown, 34 miles from Killeen, 51 miles from Waco and 59 miles from Austin. Close to Holland's quaint town center, this property provides easy access to local shops and services. Electricity and water is installed and available at the barn. A septic tank is already in place to service the barn’s living quarters. 296 ft county road frontage. The property's Ag Exempt status makes it ideal for those seeking a lifestyle connected to the land, while keeping your tax burden light. Light restrictions allow for most uses while protecting the overall aesthetics and property value. No manufactured or Modular.

    Location