521 Briarway, Granite Shoals, 78654, TX
521 Briarway, Granite Shoals
$869,000
- ID: HLM176620
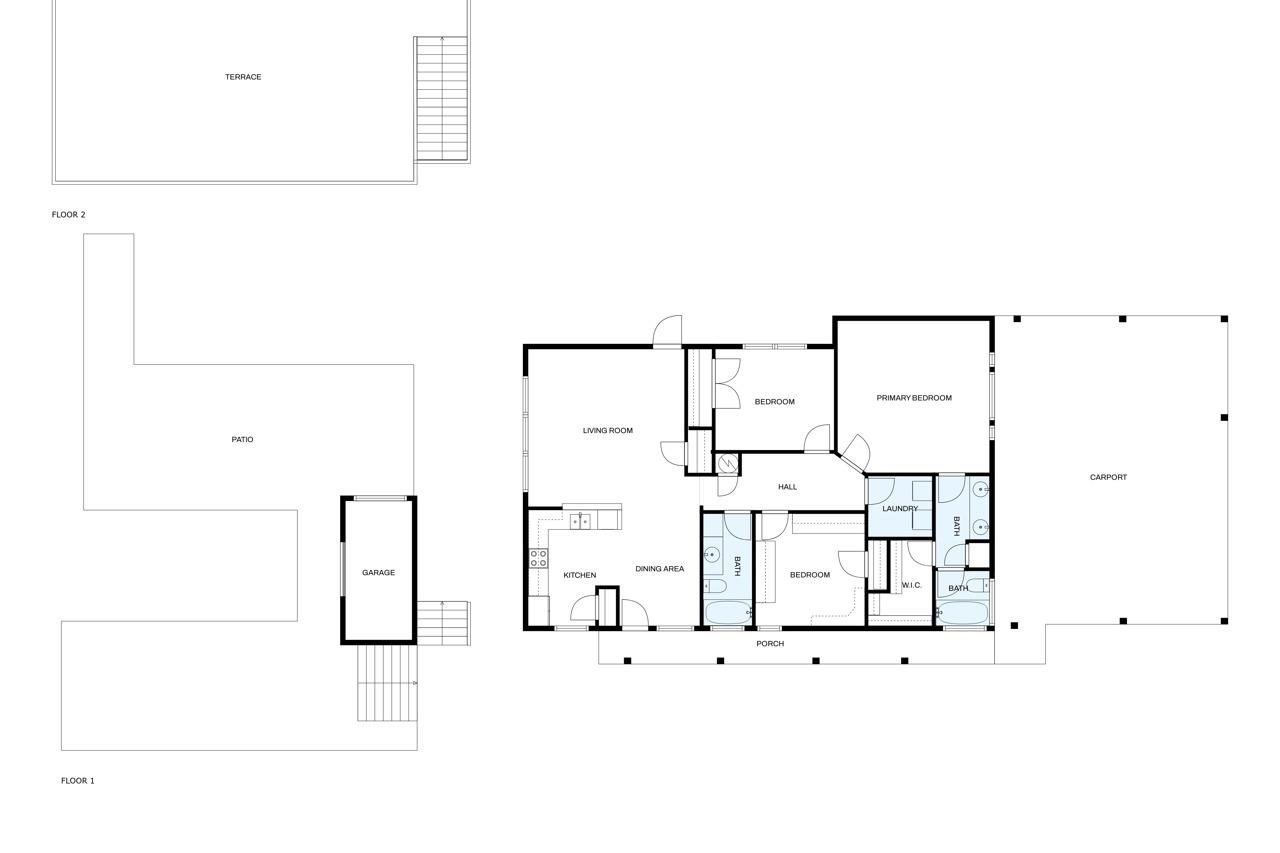
- Size: 1440sq ft.
- 3 bedroom(s)
- 2 bathroom(s)
ABOUT
This hidden gem in Granite Shoals offers a low-maintenance, lock-and-leave lakefront property with all the essentials for laid-back lake living! The 1,440 sf home features 3 bedrooms, 2 bathrooms, and a 3-car carport, making it ideal for weekend getaways, full-time living, or a short-term rental investment. Enjoy 50' of frontage on a wide channel facing NNE, offering calm waters, excellent fishing and quick access to the main lake. The concrete and steel boat dock (built in 2016) is a showstopper, it includes a covered boat slip, an upper party deck, and a lakeside storage shed for all your gear. Two jet ski lifts on the bulkhead make getting on the water a breeze. Inside, the cozy floor plan is perfect for relaxing after a day on the lake, and the no-lawn yard means your weekends stay worry-free. The property includes use of an off-water septic lot, and STRs are allowed, giving you flexibility and income potential. Whether you're looking to enjoy Lake LBJ now or invest in the future, this home is your chance to get on the lake with ease!
Features and details
Dishwasher
Dryer
Electric Range
Refrigerator
Washer
Electric Water Heater