460 Highway 29, Bertram, 78605, TX

460 Highway 29, Bertram

$2,032

  • ID: HLM175603

ABOUT

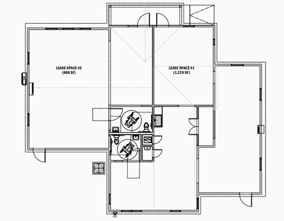
Located on HWY 29 in Bertram, TX, this newly renovated office space offers a flexible layout with two distinct offices measuring 868 SQFT and 1219 SQFT. These offices can be leased separately or together. Tenants will be responsible for electricity and internet services. This space will be available for occupancy starting January 2026.

    Location